Pinnacle+ 155


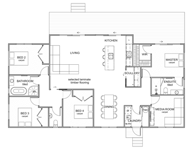
Pinnacle Plus 155 delivers expansive living through an enhanced layout designed for comfort, functionality and everyday ease. At the heart of the home, a spacious open plan kitchen, dining and living area is complemented by a dedicated scullery, creating a well organised workspace ideal for the modern homemaker or effortless entertaining. Four well proportioned bedrooms and a separate media room provide flexibility for family living, while the master suite features a walk in robe and private ensuite. Thoughtful zoning, generous space and refined design combine to create a home that supports both relaxed living and elevated daily life.

4 2 1 +









From $TBC

