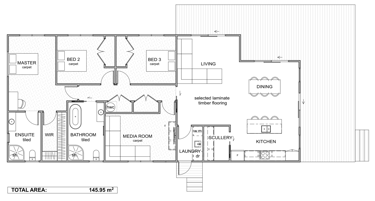
Pinnacle+ 145


Pinnacle Plus 145 offers an elevated layout that enhances everyday living through greater space, flexibility and thoughtful design. The open plan kitchen, dining and living area forms a welcoming central hub, supported by a dedicated scullery that adds valuable preparation space and keeps the main kitchen effortlessly organised for daily use or entertaining. Three comfortable bedrooms and a separate media room provide adaptable living options, while the master suite includes a walk in robe and private ensuite. Smart zoning and refined simplicity create a home that feels spacious, functional and distinctly premium.

3 2 1 +









From $TBC

