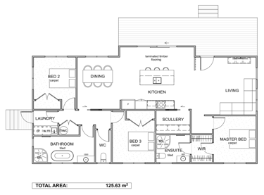
Pinnacle+ 125


Pinnacle Plus 125 combines efficient scale with enhanced design to deliver a home that feels both spacious and well considered. The open plan kitchen, dining and living area forms a light filled central hub, supported by a dedicated scullery that adds valuable storage and preparation space for the organised homemaker or effortless entertaining. Three well sized bedrooms provide comfortable accommodation, with the master suite featuring a walk in robe and private ensuite. Thoughtful layout planning and refined simplicity create a home that balances everyday practicality with a premium sense of space and comfort.

3 2 +









From $TBC
