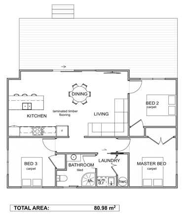
Pinnacle 80


Pinnacle 80 builds on the refined design language of the series, offering increased space and a more expansive sense of living. A generous open plan kitchen, dining and living area sits at the heart of the home, creating a light filled environment suited to both everyday living and entertaining. Three well proportioned bedrooms are thoughtfully arranged for comfort and privacy, supported by quality finishes throughout. With strong indoor outdoor connections, this design delivers an elegant balance of space, flow and architectural intent.

3 1









From $TBC