Pinnacle 70


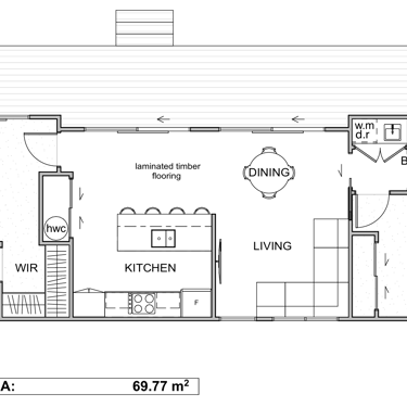
Pinnacle 70 redefines compact living through refined design and architectural clarity. A generous open plan kitchen, dining and living area forms the centre of the home, framed by strong indoor outdoor connections. The master suite includes a private ensuite and walk in robe, while the second bedroom is positioned for comfort and flexibility. Thoughtful detailing and premium finishes elevate everyday living, delivering a sophisticated retreat that balances style, comfort and efficiency.

2 1




