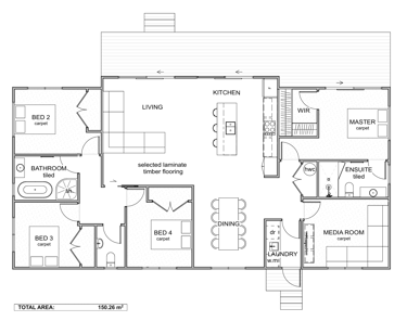
Pinnacle 150


Pinnacle 150 represents the most expansive and complete home in the Pinnacle collection, designed to deliver space, flexibility and architectural presence. Four well proportioned bedrooms provide versatility for growing families, complemented by a dedicated media room for additional living or entertainment. The master suite features a walk in robe and private ensuite, creating a refined retreat. At the centre, a generous open plan kitchen, dining and living area connects seamlessly to outdoor living, resulting in a home defined by scale, comfort and elevated everyday living.

4 2 1









From $TBC
