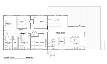
Pinnacle 140


Pinnacle 140 delivers a confident architectural presence with a spacious, well zoned layout designed for modern family living. A generous open plan kitchen, dining and living area forms the heart of the home, complemented by a separate media room that provides flexibility for entertainment or quiet retreat. The master suite includes a walk in robe and private ensuite, while the additional bedrooms sit within their own wing alongside a full family bathroom. Thoughtful planning, strong indoor outdoor flow and refined detailing create a home defined by space, privacy and everyday luxury.

3 2 1









From $TBC
