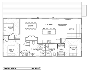
Pinnacle 100


Pinnacle 100 offers a refined sense of scale and openness, centred around a spacious open plan kitchen, dining and living area designed for both everyday comfort and effortless entertaining. The master suite features a walk in robe and private ensuite, creating a quiet retreat, while the additional bedrooms are thoughtfully positioned for privacy and flexibility. Expansive glazing strengthens the connection to outdoor living, delivering a home defined by light, space and architectural simplicity.

3 2









From $TBC