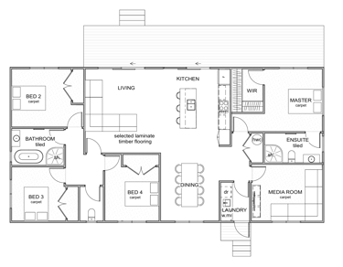
Horizon 150


Horizon 150 is the flagship of the Horizon range, offering the most generous and well appointed layout in the series. Four thoughtfully positioned bedrooms provide real flexibility for families, complemented by a dedicated media room for additional living or entertainment space. The master suite features a private ensuite and walk in robe, bringing a sense of refinement to everyday comfort. A spacious open plan kitchen, dining and living area anchors the home. With outdoor entertainment possibilities, this design delivers the highest level of space, comfort and versatility in the Horizon collection.

4 2 1









From $49,822
