Horizon 140


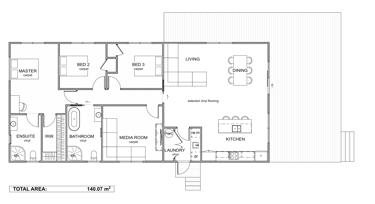
Horizon 140 offers a generous and well considered layout with an added media room that enhances how the home can be used, from family movies to a quiet extra living space. The master suite features a private ensuite and walk in robe, while the remaining bedrooms share a centrally located bathroom for everyday convenience. A large open plan kitchen, dining and living area brings the home together. With outdoor entertainment possibilities, this design blends comfort, flexibility and smart planning across a spacious footprint.

3 2 1









From $49,822
