Horizon 130


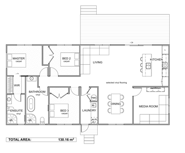
Horizon 130 offers a spacious and thoughtful layout with an added media room that expands how the home can be lived in, from quiet retreats to family entertainment. The master suite includes a private ensuite and walk in robe, while the remaining bedrooms sit close to the central bathroom for everyday convenience. The open plan kitchen, dining and living area brings generous flow across the home. With opportunities to extend living outdoors, this design blends smart function with comfortable flexibility.

3 2 1









From $259,780
