Horizon 120


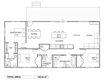
Horizon 120 delivers a spacious, well considered layout with a generous open plan kitchen, dining and living area that forms the heart of the home. The master suite features a private ensuite and walk in robe, while the remaining bedrooms sit comfortably nearby for family living. A full bathroom and separate laundry add everyday practicality. With outdoor entertainment possibilities, this design offers smart flow, thoughtful detailing and lasting comfort across a larger footprint.

3 2









From $262,188